Evan Semon
Audio By Carbonatix
Welton Street lit up for the annual Juneteenth Music Festival, but the lights are still off at the 112-year-old Rossonian Hotel.
The property at 2650 Welton Street is one of the most iconic buildings in the Five Points neighborhood. But since the 1960s, it has been the focus of a series of failed development projects designed to revive this landmark of Denver’s historic Black community and jazz scene.
“District 9, I think it’s the heart of Denver,” says Denver City Councilman Darrell Watson, who represents the area. “Walking those streets is an important part of my role. … I continue to elevate the Black community and our culture and why Five Points was referred to as the ‘Harlem of the West,’ and why it’s so important to the future of Denver.”
A century ago, the Rossonian was one of the only hotels in Denver that welcomed Black performers traveling the country; it stood at the center of one of the only neighborhoods where Black residents could buy homes in what was then a segregated city.
When news happens, Westword is there —
Your support strengthens our coverage.
We’re aiming to raise $50,000 by December 31, so we can continue covering what matters most to this community. If Westword matters to you, please take action and contribute today, so when news happens, our reporters can be there.
According to Watson, the Rossonian is key to the economic health of Five Points, which the city has pushed to redevelop over the years through various loans and incentive programs. The latest to take on the task of reviving the Rossonian is Palisade Partners, a Colorado development company that has owned the building since 2017.

Drawings of what the Rossonian could look like if this iteration of development succeeds.
Palisade Partners Development Application
On July 9, a public hearing is scheduled at Denver’s Landmark Preservation Commission, which will vote on whether the hotel’s roof, which is in bad shape, can be demolished.
“The roof demolition is part of the proposed redevelopment of the building as a hotel and restaurant with an eight-story addition to the south of the existing building,” says Alexandra Foster, communications program manager with Denver Community Planning & Development. The commission will also review the plans for that addition.
It’s been a long road to get to this point, one that reveals some of Denver’s best history – and its worst.
The Rossonian Was a Key Part of the “Harlem of the West”
Built in 1912 at the heart of Five Points, the triangular building was originally known as the Baxter Hotel, named after Robert Baxter, who owned the Baxter Cigar Company. Baxter hired George Louis Bettcher to design the hotel, a prime example of Beaux Arts architecture.
The hotel wasn’t called the Rossonian until 1929, when it was renamed for its manager, A.H.W. Ross, an attorney and newspaper publisher. By the time the Rossonian got that name, it was already a landmark in Five Points.
While some of Denver’s earliest settlers were Black – including legendary hotelier Barney Ford – a group called the Exodusters came up from the South in 1879 and built homes northeast of downtown near 26th Avenue and Welton Street and 27th and Washington streets. In 1881, the Denver City Railway Company came to the area; because it couldn’t fit all the street names on streetcar signs at the intersection, the neighborhood was dubbed Five Points.
In the 1920s, 90 percent of Denver’s Black population lived inside the 2.3 miles of east Five Points and west Whittier; because of redlining, they could not buy homes elsewhere. That’s when Five Points became known as the “Harlem of the West”: It reportedly had more Black-owned businesses than any American neighborhood other than Harlem itself. Many of those businesses were jazz clubs and hotels, which catered to visiting stars who weren’t allowed to stay in downtown establishments.
Mary Baxter took over the Rossonian in 1932, then sold it in 1937 to the Metropolitan Real Estate & Investment Company, where A.H.W. Ross was an attorney. The company renovated much of the interior during the 1940s.
By then, the biggest names in jazz were playing and staying at the Rossonian, including Duke Ellington, who spent an entire summer in residence at the hotel. Count Basie, Ella Fitzgerald, Billie Holiday and Louis Armstrong also stayed there during the hotel’s heyday.
Former Denver mayor Wellington Webb often snuck in before he was of legal age to listen to the music, though he says he was never served any alcohol. He remembers seeing Sarah Vaughan, Leroy Smith and James Brown perform there.
Jack Kerouac wrote about the Rossonian in On the Road, commenting on the spot’s “life, joy, kicks, darkness [and] music.”

The Rossonian Hotel stands at the heart of Five Points.
History Colorado
In 1957, Elvin Caldwell, then a Denver city councilman, purchased the Rossonian with his wife for around $100,000, intending to make the hotel more of a luxury property.
But by then, laws were being passed to prevent racial discrimination in real estate and end segregation. Black entertainers could stay in other hotels, and Black residents could buy homes in places other than Five Points. By the ’60s, the hotel’s heyday was over.
The Rossonian, and Five Points, Lose Prominence in Denver
The Caldwells had to sell the Rossonian in 1960 over delinquent taxes, though they soon regained the title. But in 1964, the hotel had its liquor license suspended for ten days for selling alcohol to minors; there were also arrests at the Rossonian for solicitation and prostitution.
In 1965, the Caldwells again put the Rossonian up for sale, asking $47,000 for the lounge and restaurant and $85,000 for the hotel. “It attracts little else but trouble,” Elvin Caldwell told the Denver Post at the time.
They couldn’t find a buyer. So in 1967, they leased the Rossonian to Jerry Roseman; the next year, he passed the deed to Vera and Joseph Hamilton, who considered selling the hotel to the city so that it could be converted into a Denver County Jail work-release facility or halfway house. However, the renovation would have been too costly.
So the Rossonian stayed open as a hotel until 1973, even as business slowed to a trickle. The Hamiltons then sold the building to Harry Goens Jr., a longtime city health inspector and developer. Goens sold it to his son, who sold the property to a business called PSTAR ONE Properties in 1986.
Despite the building’s downward trend, the City of Denver wasn’t ready to call it quits on the Rossonian. In 1986, the Mayor’s Office of Economic Development — under the supervision of Federico Peña – loaned $378,000 to PSTAR ONE to improve the place. Less than a year later, the company defaulted on the loan, and the City of Denver became the Rossonian’s owner.
In 1990, developer Tom Yates bought the property using a $350,000 MOED loan; two years earlier, he’d built and opened the nearby Five Points Plaza.
By then, it had been announced that the city’s first light-rail line would be built along Welton Street, as part of a revitalization plan. “We’re getting the boards off the windows,” then-Mayor Webb told the Rocky Mountain News of Yates’s plan to reopen the Rossonian as a jazz supper club.
By 1994, when the RTD station on Welton Street finally opened, the City of Denver had loaned Yates almost $2.2 million. Though he’d gutted the inside, installed new plumbing, electricity and carpeting and added an elevator, the Rossonian still hadn’t reopened for business.
Part of the delay stemmed from unanticipated problems, including when a large section of the decorative cornice over the door fell off during a rainstorm. Asbestos was discovered, costing about $30,000 to remediate. But there were also concerns about Yates’s business practices. Several of his companies had gone bankrupt, and an investigation revealed he had misused insurance payments.

Five Points is a historic cultural district, the site of the city’s annual Juneteenth celebration.
Brandon Johnson
The State of Colorado helped to form the Five Points Community Development Corporation, which took over Five Points Plaza and became a partner in the Rossonian Limited Partnership, which was soon the Rossonian’s new owner.
Things weren’t much better along the rest of Welton Street, where the light-rail line was proving a disappointment for Five Points, with people complaining about lost parking and a lack of stations.
In 1993, the Denver Housing Authority helped bail out the Rossonian by signing a five-year lease for around $12,000 per month, but the DHA moved out in 1998. The city again foreclosed on the property, after losing around $1.5 million overall.
Demolition of the building was out of the question; the Rossonian had been designated a landmark on the National Register of Historic Places in 1995. In 2002, Five Points was named Denver’s first cultural historic district, which offered further protection. But while the Rossonian was protected, it continued to deteriorate.
Finally, longtime Five Points developer and resident Carl Bourgeois, who’d founded the company Civil Technology, bought the hotel for $800,000 in 2006, according to tax assessor records. Bourgeois, who passed away last year, said he used to sneak out as a teen to visit the Rossonian in its prime.
Bourgeois wanted to open the Rossonian as a jazz venue and upscale restaurant, but in 2007 the development was halted due to infrastructure issues and financial infeasibility. The hotel continued to sit empty.
In 2015, an idea was floated that Sage Hospitality, which runs the Crawford at Union Station and played a major role in the station’s revitalization, would become the operator of a luxury hotel at the Rossonian, but that never came to pass.
Instead, Civil Technology began working with developers Palisade Partners and Confluence Companies to form a new entity called the Rossonian Partners. In 2017, Bourgeois sold the Rossonian for $6 million to an LLC created by Palisade Partners.
In 2018, Palisade Partners unveiled plans to reopen the Rossonian as a 41-room hotel, with a basement jazz club and first-floor restaurant named for hometown hero Chauncey Billups, who would be part of the project.
Although Billups soon dropped out, Palisade just pivoted and kept planning. In 2022, the company submitted an application to renovate the Rossonian and add an annex with a new hotel connected to the historic one; Craine Architecture is the firm involved in the design.
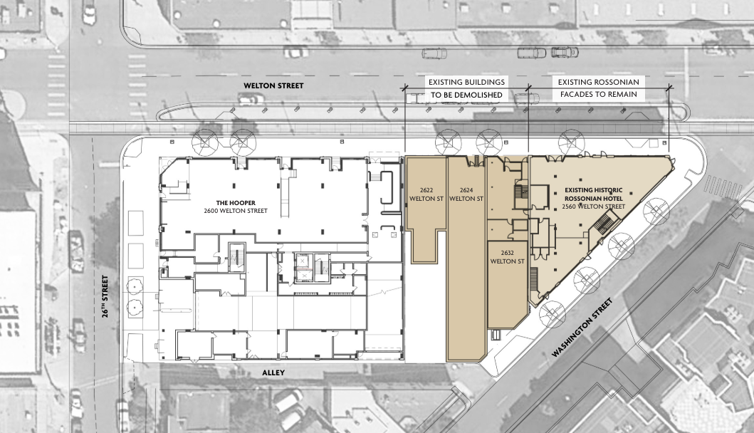
The plan would keep the Rossonian’s historic facade intact while demolishing the three buildings next to the Rossonian, which are also owned by Palisade. The result would be a hotel, restaurant and bar with some sort of music component; there’s also talk of a speakeasy lounge in the basement of the existing Rossonian. Palisade operates the Hooper, a hotel just down the street; the proposal calls for connecting the Rossonian development with the Hooper.

The Rossonian’s current developers plan to add a new hotel tower connected to the existing building.
Palisade Partners Development Application
Palisade submitted a presentation to Denver’s Landmark Preservation Commission in April with updated drawings and plans. “The historic Rossonian hotel, once an acclaimed jazz venue, is being rehabilitated to include a neighborhood-oriented restaurant, a new speakeasy music lounge, and a hotel addition (infill project),” the presentation notes.
The plans propose replacing many of the worn-down existing elements of the building with in-kind treatments that meet current code while maintaining historic character. The developers also say that they will restore elements when possible, such as the historic neon sign over the door and cornice at the top of the building’s front entrance.
In May, Landmark Preservation staff found that the plan for the annex hotel meets the Five Points Historic Cultural District Design Standards & Guidelines, and suggested approval. The rehabilitation of the existing building is a separate matter, but the first step of that rehabilitation – demolishing the roof – will be discussed at the public hearing on July 9.
“Ownership remains firmly dedicated to the vision,” says Krystal Shores of Palisade Partners.
And Five Points is eager for that vision to materialize. But in the meantime, the neighborhood just celebrated another Juneteenth, at which Billups was honored with a lifetime achievement award…a block from the still-boarded-up Rossonian.